Objektbeschreibung
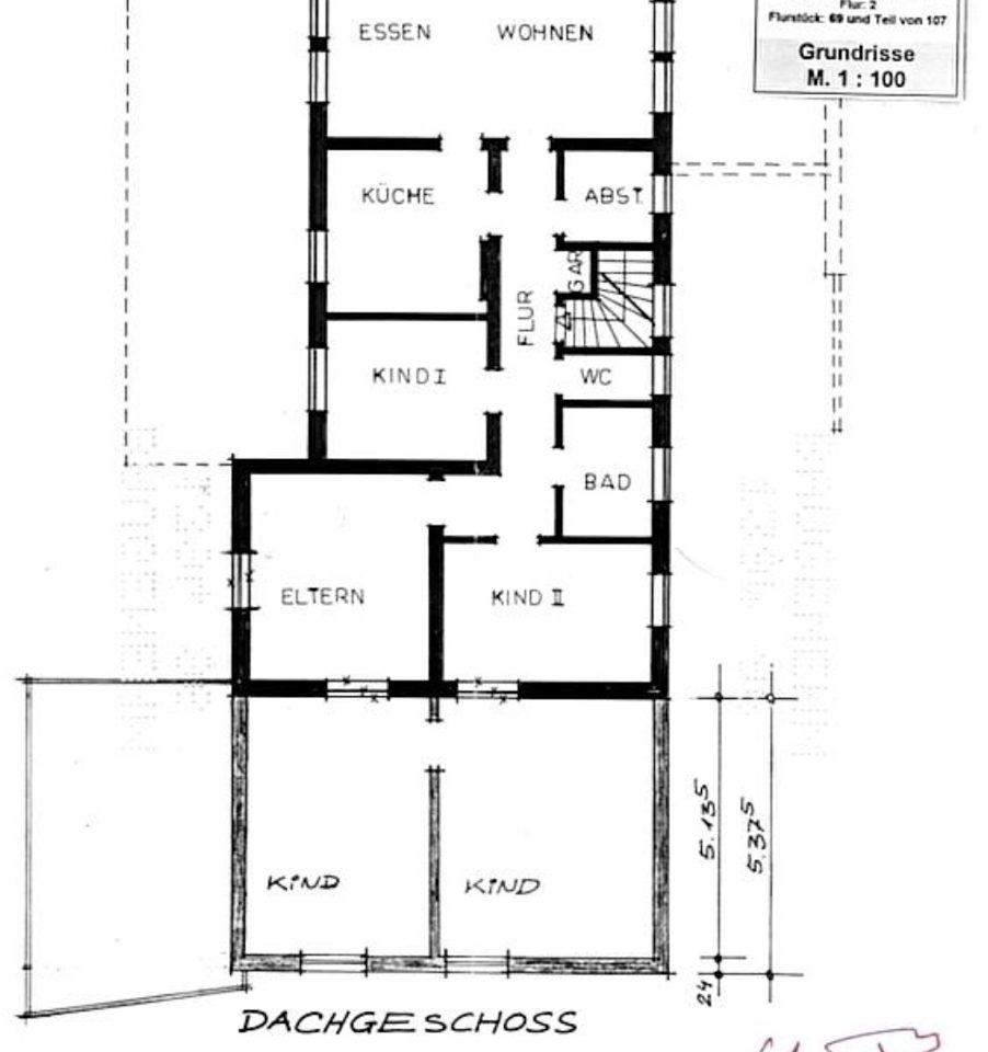
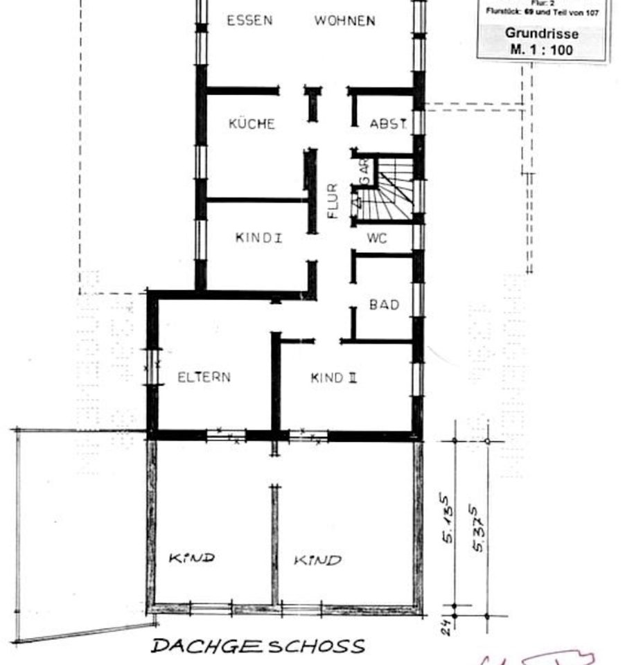
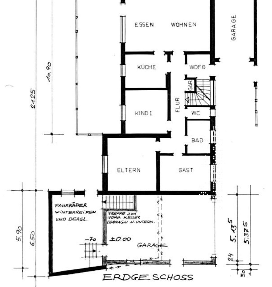
Dieses Zweifamilienhaus wurde ursprünglich im Jahr 1964 errichtet und später durch die Aufstockung der Doppelgarage sowie den Ausbau des Obergeschosses im Jahr 1997 erweitert. Die Teilung in zwei Eigentumswohnungen liegt bereits vor; zuletzt wurde die Immobilie als Mehrgenerationenhaus genutzt. Aber auch eine Vermietung z.B. der oberen Wohnung zur Reduzierung der Finanzierungskosten ist eine gute Möglichkeit. Insgesamt stehen ca. 220 m² Wohnfläche auf zwei Ebenen zur Verfügung, davon entfallen ca. 130 m² auf die Wohnung im Erdgeschoss mit zusätzlichen Räumen im Obergeschoss und ca. 90 m² auf die Wohnung im Obergeschoss. Die Erdgeschosswohnung bietet ein großzügiges Wohn-Esszimmer mit Zugang zum später angebauten Wintergarten, eine Küche, eine Diele, ein WC, ein Bad sowie zwei Zimmer im Erdgeschoss. Ergänzt wird diese Einheit durch zwei weitere Zimmer und ein Bad im Obergeschoss. Die tatsächliche Aufteilung weicht dabei teilweise von den beigefügten Grundrissen ab. Die Wohnung im Obergeschoss verfügt ebenfalls über ein großes Wohn-Esszimmer, hier mit Zugang zu einem Balkon, außerdem über eine Küche, eine Diele, einen Abstellraum, zwei weitere Zimmer sowie ein sehr ansprechend gestaltetes Bad. Im Wohnzimmer besteht zudem ein Kaminanschluss. Das Haus ist vollständig unterkellert. Im Keller sind baujahresbedingte Feuchtigkeitserscheinungen vorhanden. Das ca. 684 m² große Grundstück bietet rechts vom Haus einen schönen Garten. Besonders angenehm ist die ruhige Lage am Ende einer Sackgasse. Links vom Haus befinden sich eine Doppelgarage mit einer großzügigen Heimwerkstatt im rückwärtigen Bereich, rechts ergänzt eine weitere Einzelgarage das Platzangebot.
Ausstattung
•Teilung in zwei Eigentumswohnungen bereits vorhanden •Nutzung zuletzt als Mehrgenerationenhaus •Ca. 220 m² Wohnfläche insgesamt •Grundstück ca. 684 m² •Ursprüngliches Baujahr 1964 •Aufstockung der Doppelgarage und Ausbau des Obergeschosses 1997 •Vollunterkellerung •Baujahresbedingte Feuchtigkeit im Keller •Ölheizung aus 2012 •Fenster im gesamten Wohnhaus größtenteils 1997 und 2003 erneuert, im Obergeschoss teilweise bereits 1986 •Wärmedämmverbundsystem •Wintergarten an der Erdgeschosswohnung •Balkon an der Obergeschosswohnung •Kaminanschluss im Wohnzimmer des Obergeschosses •Modern gestaltete Bäder, Bad im Erdgeschoss aus den 2000er Jahren, Bad im Obergeschoss neuer •Doppelgarage links vom Haus •Einzelgarage rechts vom Haus •Großzügige Heimwerkstatt hinter der Doppelgarage •Schöner Garten rechts vom Haus •Ruhige Lage am Ende einer Sackgasse
Lage
Simmerath-Kesternich liegt in der Städteregion Aachen und ist geprägt von der typischen Eifellandschaft mit weitem Blick, Natur und hohem Freizeitwert. Für Natur- und Outdoor-Freunde bietet die Umgebung sehr gute Möglichkeiten (z. B. Einstieg in lokale Rundwanderwege in Kesternich). Die Anbindung an den ÖPNV erfolgt über Buslinien im Bereich Simmerath/Kesternich (u. a. Linien 63/SB63 und 68, je nach Verbindung/Zeiten). Der Ortsteil Kesternich zählt zu den attraktivsten Aussichtslagen rund um den Rursee. In unmittelbarer Umgebung beginnen traumhafte Spazierwege. Ein Kindergarten befindet sich im Ort. Weiterführende Schulen sind gut erreichbar: Gymnasien u. a. in Monschau, Schleiden und Vossenack, Realschule in Monschau, ein Berufsbildungszentrum in Simmerath sowie eine Privatschule bis zum Abitur in Roetgen. Die Versorgung des täglichen Bedarfs und weitere Infrastruktur (Einkaufen, Ärzte, Dienstleistungen) befinden sich in Simmerath und sind in unter 3 Autominuten erreichbar. Zur Autobahnauffahrt Aachen-Lichtenbusch sind es ca. 27 Minuten, in die Aachener Innenstadt ca. 35 Minuten. Die A61 (Anschluss Erftstadt) erreichen Sie über sehr gut ausgebaute Bundesstraßen in ca. 35 Minuten; über diese Strecke ist auch das Kreuz Köln-West in ca. 45 Minuten erreichbar.
Sonstiges
Es liegt ein Energiebedarfsausweis vor. Dieser ist gültig bis 17.2.2035. Endenergiebedarf beträgt 142.60 kwh/(m²*a). Wesentlicher Energieträger der Heizung ist Öl. Das Baujahr des Objekts lt. Energieausweis ist 2012. Die Energieeffizienzklasse ist E. Alle Angaben in diesem Exposé beruhen auf Informationen, die vom Eigentümer und/oder Dritten zur Verfügung gestellt wurden. Eine Haftung für die Richtigkeit, Vollständigkeit und Aktualität der Angaben kann nicht übernommen werden.