haus

Wohn- und Geschäftshaus mit Gewerbeeinheit und 2 Wohnungen auf ca. 940 m² Grundstück

Miet-/Kaufobjekt Kaufen
Büro-/Praxis-/Wohnfläche 290,00 m²
Grundstücksgröße 940,00 m²
Kaufpreis 495.000,00 €

Objektart Haus
Objekt ID LamImP28
Baujahr 1964
Wesentlicher Energieträger Gas
Energieausweis liegt vor
Energieausweistyp Bedarfsausweis
Endenergieverbrauch 233,40 kWh/(m² * a)
Energieverbrauch für Warmwasser enthalten Nein

Provision Je 3,57 % vom Kaufpreis inkl. MwSt. Käufer- und Verkäuferprovision

Objektbeschreibung

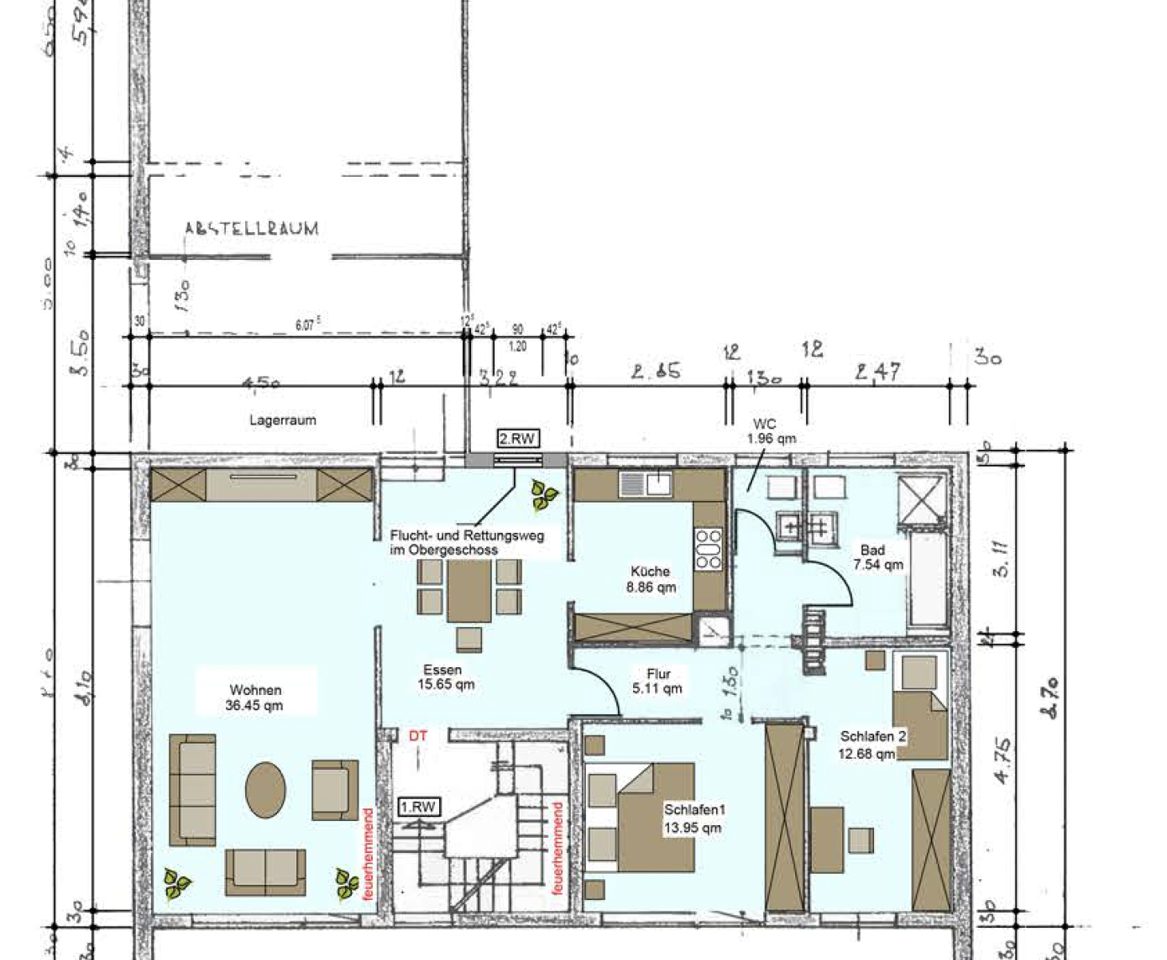
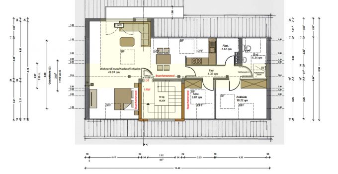
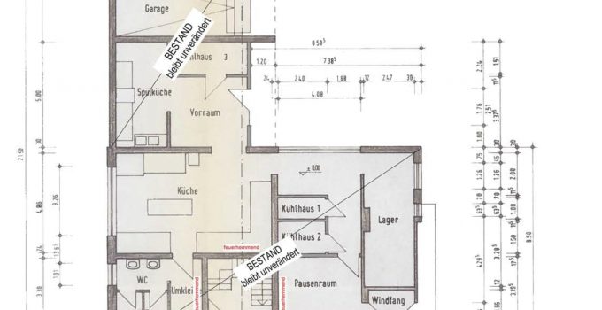
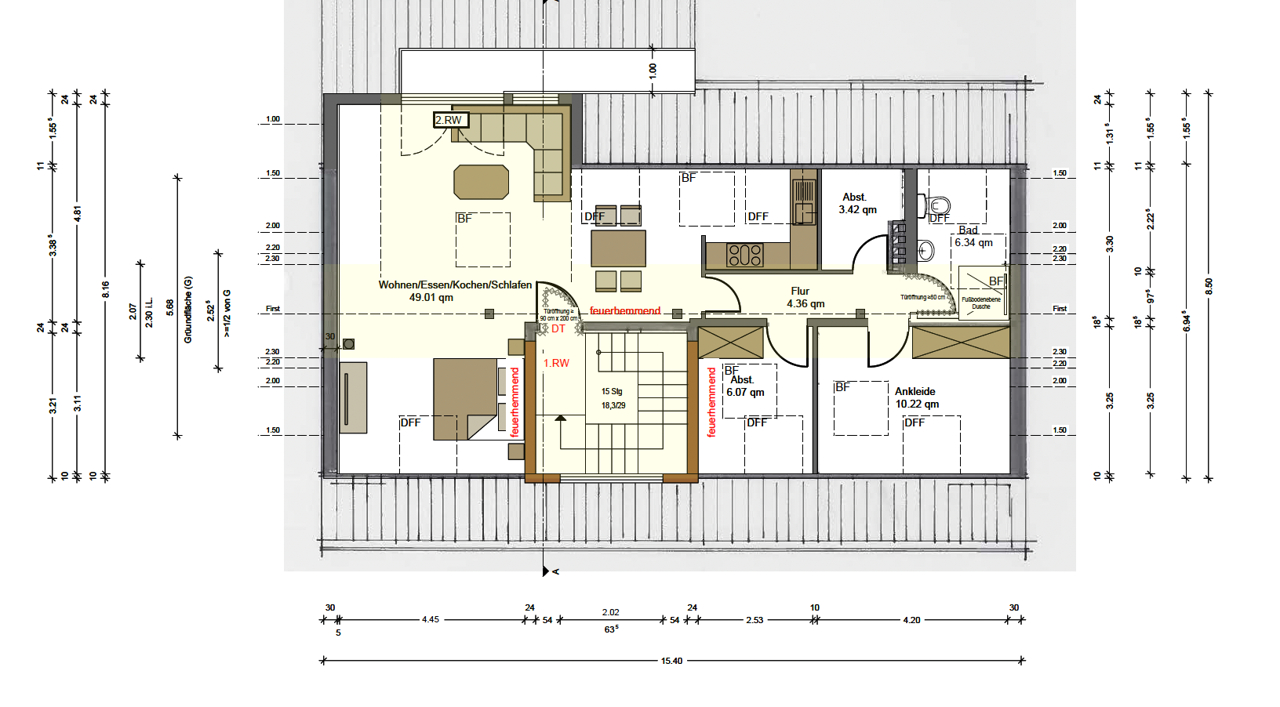
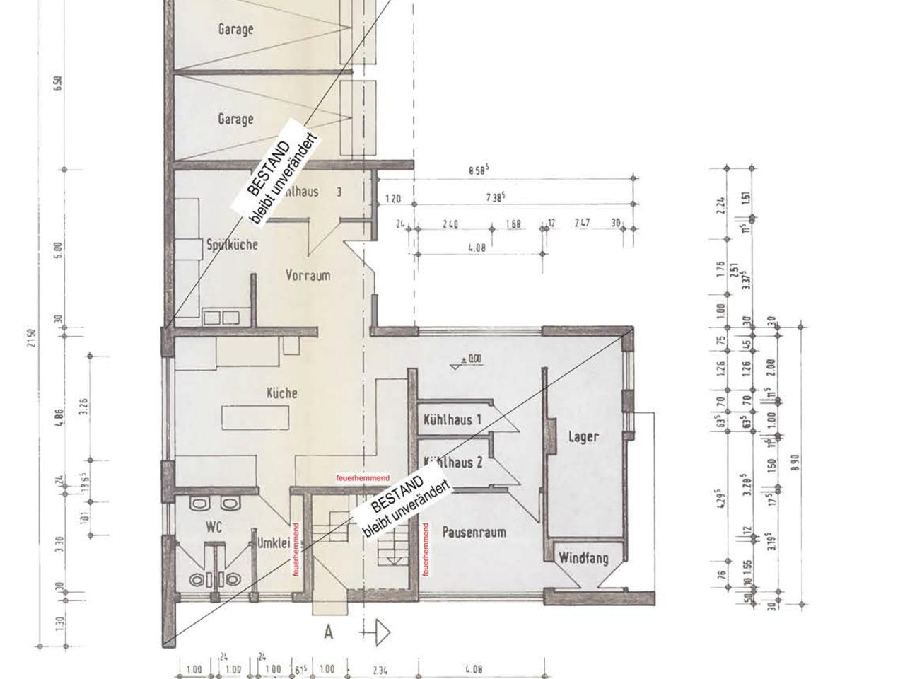
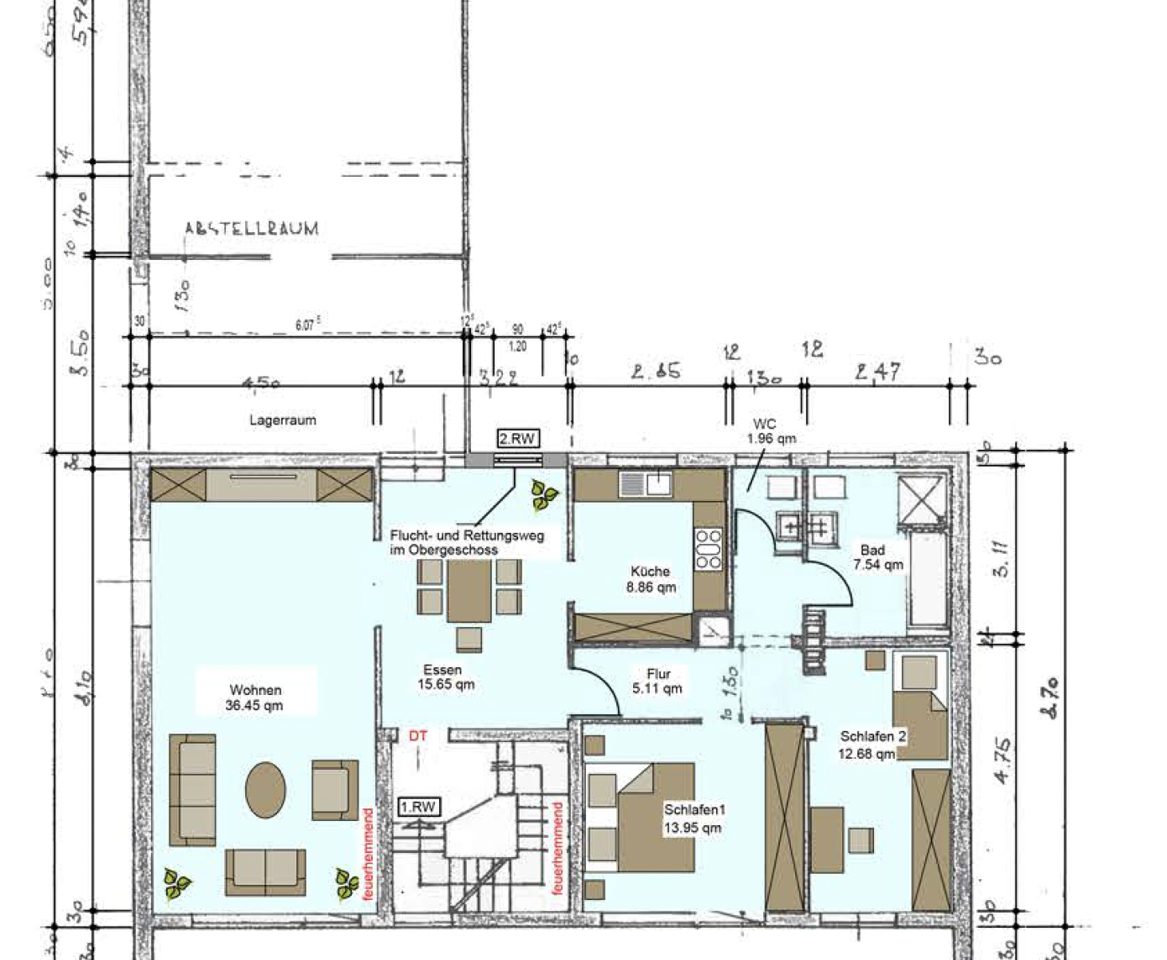
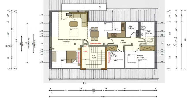
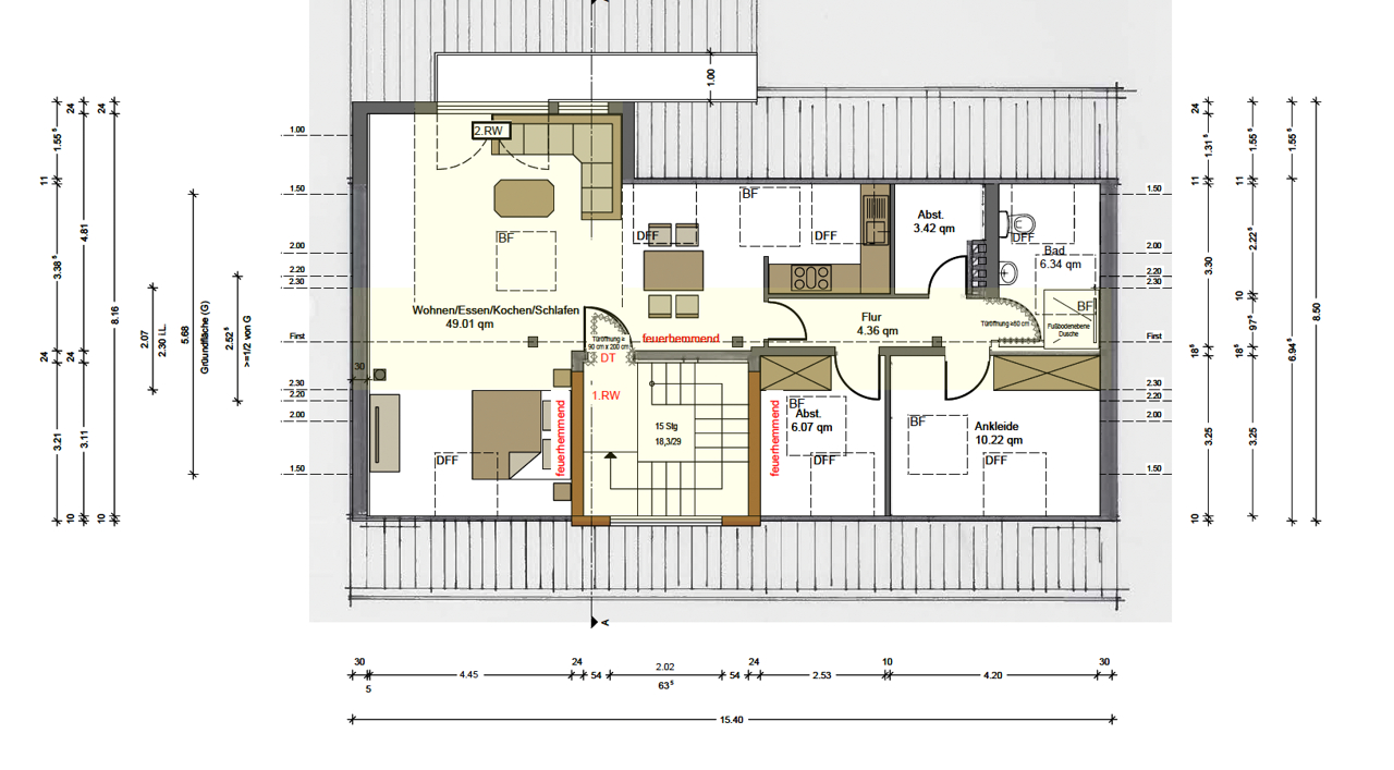
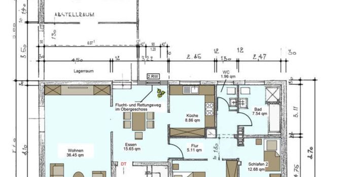
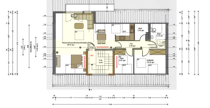
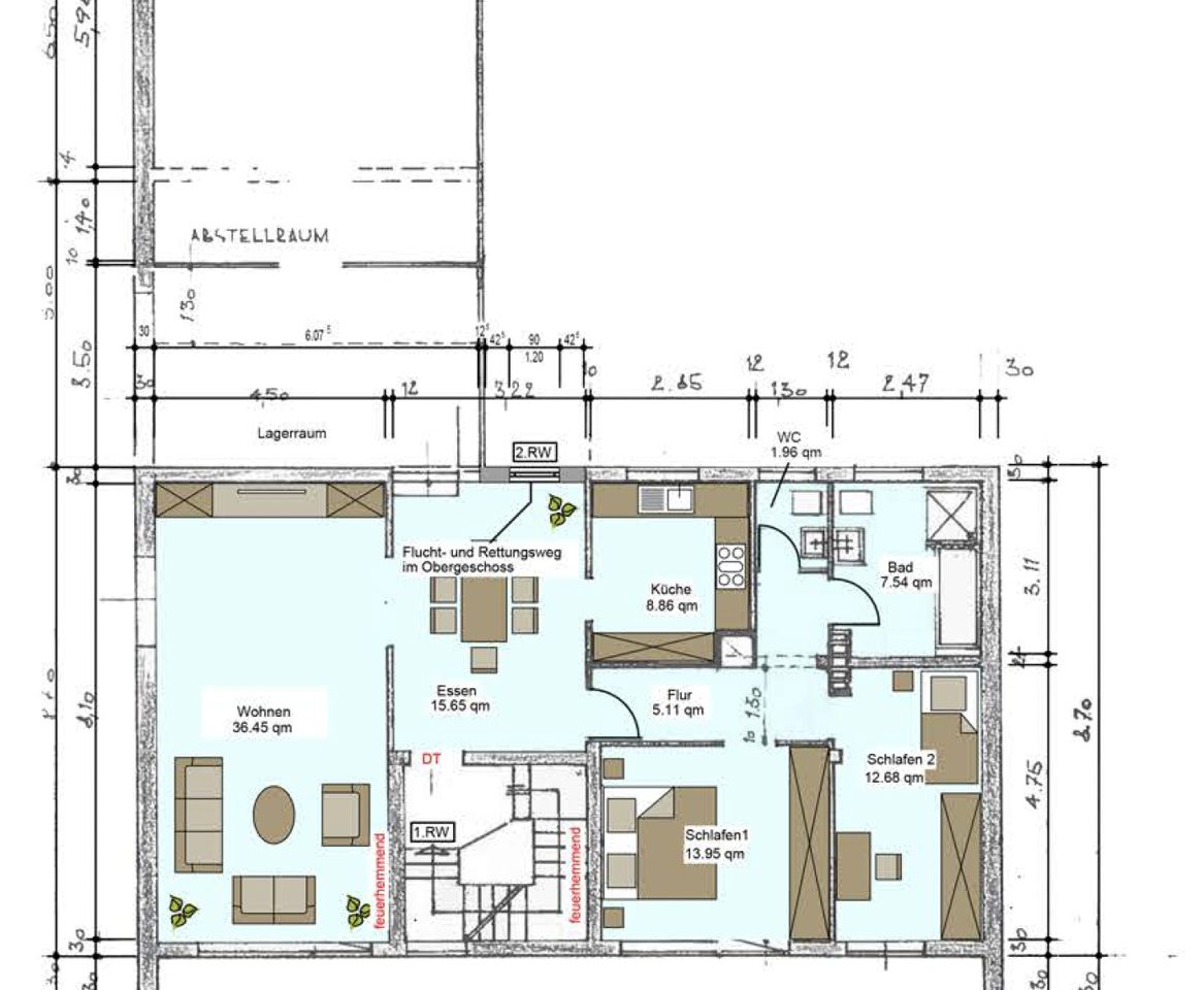
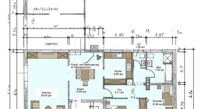
Dieses Wohn- und Geschäftshaus aus dem ursprünglichen Baujahr 1964 bietet eine seltene Kombination aus vermieteter Wohnfläche, zusätzlicher Ausbau-/Vermietungsreserve und flexibel nutzbaren Gewerbeflächen im Erdgeschoss. Das Grundstück umfasst ca. 940 m²; das Gebäude ist komplett unterkellert und wird durch zwei Garagen neben dem Haus ergänzt. Erdgeschoss (Gewerbe): Im Erdgeschoss befinden sich Gewerbeflächen, die zuletzt als Küche und Nebenräume eines Caterers genutzt wurden. Die Fläche umfasst ca. 119 m² (zzgl. Garagenflächen). Die letzte Kaltmiete lag bei 750 €; je nach Konzept und Ausgestaltung erscheint eine höhere Miete grundsätzlich plausibel. Inhaltlich bietet das EG vielfältige Optionen: Z.B. Selbstnutzung bzw. Vermietung an einem Gewerbetreibenden (Caterer, Beerdigungsinstitut, Handwerker, Tierarztpraxis, etc.), aber auch eine Aufteilung in mehrere Einheiten und ggfs. eine Nutzungsänderung in Wohnen scheint eine sinnvolle und wirtschaftlich attraktive Alternative zu sein. 1. Obergeschoss (Wohnung): Eine großzügig geschnittene Wohnung mit ca. 102 m² Wohnfläche: zwei Schlafzimmer, großes Wohnzimmer, Esszimmer, Abstellraum, Balkon, Küche, Bad sowie separates WC. Die Wohnung ist aktuell vermietet für 750 € Nettokaltmiete/Monat. Dachgeschoss (Wohnung): Eine weitere Wohnung mit ca. 69 m²: große Wohnküche mit Holzofen, Bad sowie verschiedene gut belichtete Abstellräume. Die Einheit ist derzeit leerstehend; die letzte Kaltmiete lag bei 500 €.

Ausstattung

•Ursprüngliches Baujahr: 1964 •Grundstück: ca. 940 m² •Komplett unterkellert •Zwei Garagen neben dem Haus •Kunststofffenster mit Isolierverglasung •EG Gewerbe ca. 119 m², derzeit leerstehend (zuletzt 750 € Kaltmiete) •1. OG ca. 102 m², vermietet (650 € Kaltmiete) •DG ca. 69 m², derzeit leerstehend (zuletzt 500 € Kaltmiete)

Lage

Das Objekt liegt in Lammersdorf, einem der gut angebundenen Ortsteile der Gemeinde Simmerath in der Eifel. Lammersdorf bietet ein gewachsenes Umfeld mit kurzen Wegen ins Umland und Richtung Simmerath-Zentrum. Die Region ist geprägt von hoher Freizeit- und Erholungsqualität (Eifellandschaft, Nähe zu Natur- und Ausflugszielen) und ist zugleich für den Alltag attraktiv, weil sich wesentliche Einrichtungen typischerweise im Ort bzw. im nahen Simmerath bündeln (Einkaufen, medizinische Grundversorgung, Schulen/Betreuung und weitere Dienstleistungen – teils im Ortsteil, teils in den benachbarten Zentren). Durch die Lage im Gemeindegebiet bestehen zudem gute Verbindungen in die umliegenden Orte der Eifel sowie in Richtung Aachen über die regionalen Verkehrsachsen.

Sonstiges

Es liegt ein Energiebedarfsausweis vor. Dieser ist gültig bis 25.2.2036. Endenergiebedarf beträgt 233.40 kwh/(m²*a). Wesentlicher Energieträger der Heizung ist Gas. Das Baujahr des Objekts lt. Energieausweis ist 2004. Die Energieeffizienzklasse ist G. Alle Angaben haben wir sorgfältig zusammengetragen. Hierbei müssen wir uns jedoch auf die Informationen der Verkäufer und Dritter stützen. Wir können deshalb für die Richtigkeit und Vollständigkeit keine Gewähr übernehmen.