hallen_lager_prod

Modernes Gewerbeobjekt in beliebtem Industriegebiet von Monschau-Imgenbroich

Miet-/Kaufobjekt Kaufen
Büro-/Praxis-/Wohnfläche 791.00 m²
Kaufpreis 590.000,00 €

Objektart Halle/Lager/Produktion
Objekt ID ImgAmW9

Provision Je 3,57 % vom Kaufpreis inkl. MwSt. Käufer- und Verkäuferprovision

Objektbeschreibung

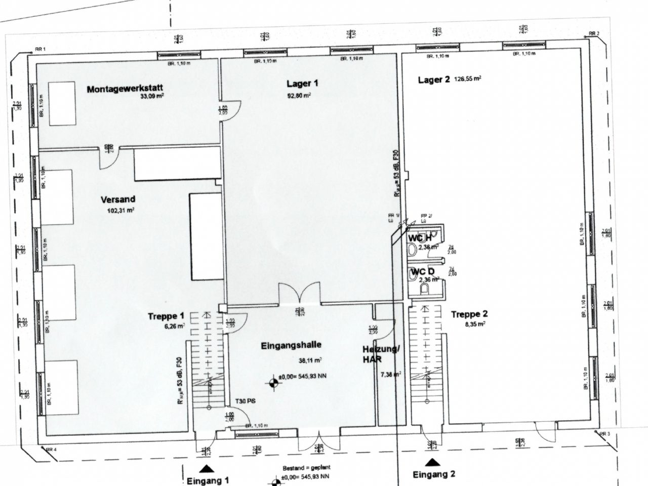
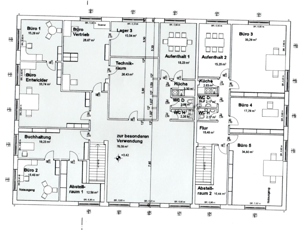
Zum Verkauf steht ein modernes, 2014 fertiggestelltes Gewerbegebäude mit einer Außenmaß-Ausdehnung von ca. 18 m × 26 m (entspricht rund 468 m² Grundfläche pro Geschoss) sowie einem Grundstück von ca. 1.321 m². Im Erdgeschoss befindet sich eine Lager- und Fertigungshalle mit rund 400 m² Fläche. Große Fensterflächen sorgen für gute natürliche Beleuchtung – die Raumaufteilung ist flexibel: Eine Aufteilung in ca. 2/3 zu 1/3 ist problemlos realisierbar. Ein weiteres Tor könnte ergänzt werden, um die Logistik weiter zu optimieren. Im Obergeschoss sind ebenfalls rund 400 m² Nutzfläche vorhanden: gut belichtete Büroräume, vier Toiletten, eine Dusche, zwei Teeküchen und ein großer Besprechungsraum. Zwei separate Zugänge ermöglichen eine Teilung nach außen – auch hier ist eine Aufteilung 2/3 zu 1/3 realisierbar. Darüberliegend stehen große Speicherflächen für Lagerzwecke zur Verfügung. Ein modern errichtetes Gewerbeobjekt mit hervorragender Ausstattung in einer gut erschlossenen und gewerblichen Wachstumszone. Die flexible Aufteilung in mehrere Einheiten macht das Objekt besonders attraktiv – sowohl für Eigennutzung als auch als Investment mit (teilweise) Mietflächen-Modell. Die nachhaltige technische Ausstattung (Pellets, PV-Anlage) reduziert Betriebskosten und spricht wachsendes Interesse an klimafreundlichen Industriebauten an.

Ausstattung

•Das Gebäude umfasst ca. 4.057 m³ umbauten Raum. •Die Geschosshöhe im Erdgeschoss beträgt etwa 3,40 m. •Vor dem Haus befinden sich zehn Stellplätze. •Zur technischen Ausstattung gehören eine Pellets-Heizung sowie eine Photovoltaikanlage mit ca. 27 kW Leistung, deren Strom vollständig eingespeist wird. •Flexible Raumstruktur: Trennwände im Lager sowie im Bürobereich sind anpassbar. •Gebäude ist massiv gebaut. •Die Eigentümergesellschaft (eine AG) wurde eigens zur Betreibung des Gebäudes gegründet und kann im Rahmen der Transaktion übernommen werden, was steuerliche und strukturelle Vorteile mit sich bringen kann.

Lage

Monschau-Imgenbroich verfügt über einen ausgezeichneten gewerblichen Standortcharakter: Das südlich gelegene Industrie- und Gewerbegebiet bietet Unternehmen mit größerem Raumbedarf die Möglichkeit zur Ansiedlung. Der Gewerbestandort “Gewerbegebiet Monschau Imgenbroich HIMO” hat sich unter anderem als Modellprojekt für handwerklich-innovative Unternehmen etabliert, und auf einer Fläche von etwa 45 ha wurden bereits rund 1.300 Arbeitsplätze geschaffen. Die Stadt verfolgen aktiv Erweiterungsmaßnahmen (z. B. Erweiterung des Gewerbegebiets Imgenbroich) um Ansiedlung und Wachstum zu fördern. Verkehrsanbindung: Das Gewerbegebiet ist über die B258/B399 sowie die Autobahnanschlüsse erreichbar (z. B. Ausfahrt Aachen-Lichtenbusch) und somit für regionale Verkehre gut aufgestellt.

Sonstiges

Es gibt kleinere Abweichung zu den hier begefügten Grundrissen. Alle Angaben haben wir sorgfältig zusammengetragen. Hierbei müssen wir uns jedoch auf die Informationen der Verkäufer und Dritter stützen. Wir können deshalb für die Richtigkeit und Vollständigkeit keine Gewähr übernehmen.