haus

4 hochwertige Neubau-EFH in traumhaft grüner Grenzlage Deutschland-Belgien

Miet-/Kaufobjekt Kaufen
Büro-/Praxis-/Wohnfläche 110,00 m²
Grundstücksgröße 368,00 m²
Kaufpreis 404.980,00 €

Objektart Haus
Objekt ID BelWes4EFH

Provision Keine Provision für den Käufer

Objektbeschreibung

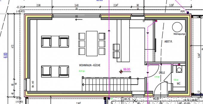
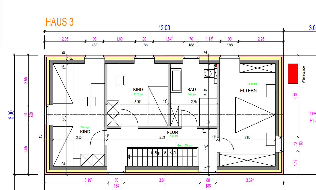
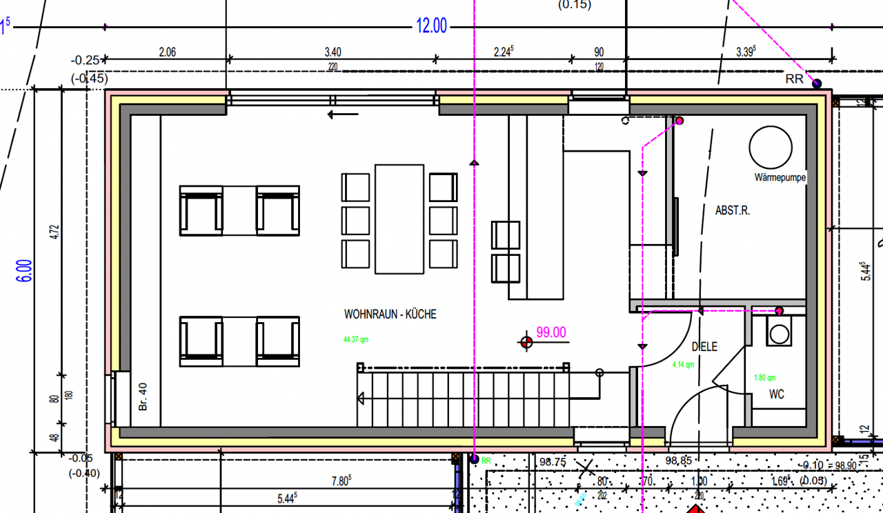
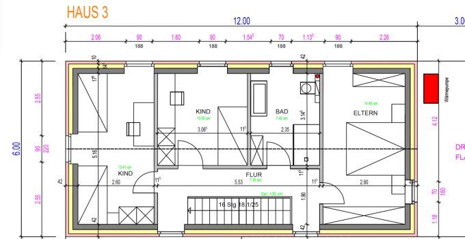
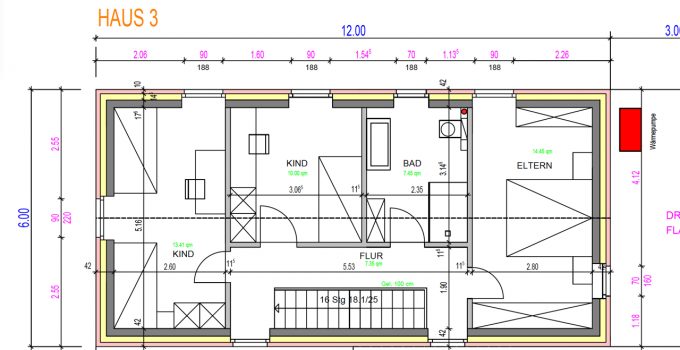
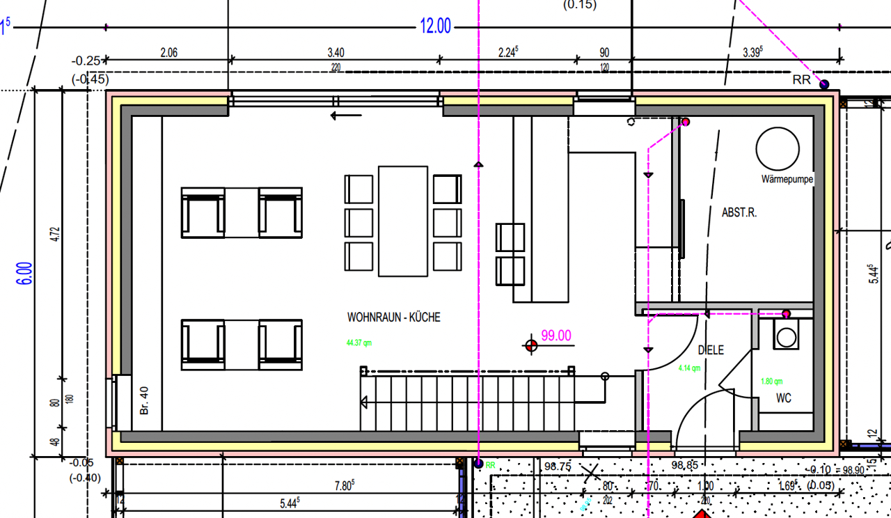
Die Gemeinde Raeren (B), direkt angrenzend an die Eifelgemeinde Roetgen (D), stellt durch ihre Grenzlage einen besonderen Wohnort dar. Verwirklichen Sie Ihren Traum vom lang ersehnten Eigenheim in einer Region, die sich durch naturnahes Wohnen, einen hohen Freizeitwert sowie eine hervorragende Nahversorgung auszeichnet. Die harmonisch in die Umgebung integrierten 4 Einfamilienhäuser mit Satteldach, 2 Vollgeschossen und Klinkerfassade bilden einen attraktiven und romantischen Innenhof. Baubeginn ist im Spätsommer 2024. Die schlüsselfertigen Einfamilienhäuser werden nach genehmigtem Architektenplan und Baubeschreibung erstellt. Die Grundrisse und die Baubeschreibung, sowie Lastenhefte sind auf Anfrage erhältlich. Alle vier Häuser haben folgende Aufteilung: Das Erdgeschoss besteht aus einem großzügigen Wohnbereich mit offener Küche und anschließender Terrasse, Diele, Gäste-WC und HWR. Im Obergeschoss werden Ihnen 3 Zimmer, Bad und Diele geboten. HAUS 1 Grundstück ca. 293 qm. zzgl. Hofanteil ca. 75 qm.- Wohnfläche ca. 110 qm. – 1 Garage + 1 Außen-PKW- Stellpatz – PREIS 404.980 € zuzüglich ca. 80.000 Euro Steuern und Notarkosten. Sodass die Gesamtkosten bei etwa 485.000 Euro liegen werden. HAUS 2 Grundstück ca. 515 qm. zzgl. Hofanteil ca. 75 qm.- Wohnfläche ca. 110 qm. – 2 Garagen – PREIS 452.580 € zuzüglich ca. 90.000 Euro Steuern und Notarkosten. Sodass die Gesamtkosten bei etwa 543.000 Euro liegen werden. HAUS 3 Grundstück ca. 395 qm. zzgl. Hofanteil ca. 75 qm.- Wohnfläche ca. 110 qm. – 2 Garagen – PREIS 431.093 € zuzüglich ca. 90.000 Euro Steuern und Notarkosten. Sodass die Gesamtkosten bei etwa 521.000 Euro liegen werden. HAUS 4 Grundstück ca. 293 qm. zzgl. Hofanteil ca. 75 qm.- Wohnfläche ca. 110 qm. – 1 Garage + 1 Außen-PKW- Stellpatz – PREIS 414.254 € zuzüglich ca. 84.000 Euro Steuern und Notarkosten. Sodass die Gesamtkosten bei etwa 498.000 Euro liegen werden.

Ausstattung

EFH nicht unterkellert - Klinkerverblendung mit 12 cm Hartschaumdämmung - Satteldachkonstruktion - Luft-Wasser-Wärmepumpe als Splitgerät mit Fußbodenheizung im EG und OG - kontrollierter Lüftungsanlage - Schotter im Terrassenbereich & Zuwegung - Anschlüsse & Drainage enthalten - Kunststofffenster Farbe anthrazit mit dreifach Isolierverglasung - Geschosstreppe in Stahlbeton - Badezimmer mit Badewanne & bodentiefer Dusche, WC, Doppelwaschtisch mit Unterschrank, Spiegel - Laminat in den Schlafräumen OG + DG - Fliesen in allen anderen Räumen - Innentüren in weiß oder Buche furniert - PKW-Stellplätze für Besucher

Lage

Die Grundstücke liegen in ruhiger Lage vom belgischen Raeren-Petergensfeld, direkt am deutschen Dorf Roetgen, in dem alle infrastrukturellen Einrichtungen vorhanden sind. In dieser Grenzregion profitieren Sie von den Vorteilen beider Länder und können frei entscheiden welche Zeitung, Krankenversicherung, Handynetz, Schule, Kindergarten, Supermarkt etc. Sie wählen. Aachen ist in circa 20 Autominuten zu erreichen, die Autobahnauffahrt Lichtenbusch in circa15 Minuten. Direkt erreichbar sind auch die belgischen Orte Raeren und Eupen. Darüber hinaus liegen sie direkt am Naherholungszentrum Hohes Venn. Sie können nur wenige Meter entfernt im Wald spazieren gehen oder ausgedehnte Radtouren machen.

Sonstiges

Diese Objekte vermarkten wir in Kooperation mit unserem belgischen Partner Euro Immo. Alle Angaben haben wir sorgfältig zusammengetragen. Hierbei müssen wir uns jedoch auf die Informationen der Verkäufer und Dritter stützen. Wir können deshalb für die Richtigkeit und Vollständigkeit keine Gewähr übernehmen.